Closed MLS# 26016915

1115 Childress Avenue, St Louis City, MO 63139

Subdivision: Parkhurst Add

2

Bedrooms

2

Baths

1,251

Area (sq.ft)

$239

Cost/sq.ft

1 Story

Type

3

Days on Market
Call Agent

Description

Welcome home to this inviting 2-bedroom, 2-bath residence located in the heart of Dogtown. Enjoy the convenience of being within walking distance to popular restaurants, local services, the St. Louis Zoo, and Forest Park—one of the city’s most treasured outdoor destinations. Inside, the updated kitchen offers granite countertops, recessed lighting, a pantry, and abundant cabinetry and counter space, making it both stylish and highly functional. Wood floors flow throughout most of the main level, complemented by a separate dining room ideal for everyday meals or entertaining guests. The clean, well-maintained basement expands your living space with a full bathroom, ample storage, and a cedar closet—perfect for seasonal items. Updated bathrooms add a fresh, modern touch throughout the home. Outside, enjoy relaxing evenings on the covered patio, along with the convenience of off-street parking and a one-car garage. This well-cared-for home combines comfort, functionality, and an exceptional walkable location in one of St. Louis’ most sought-after neighborhoods. Move in ready!

Property Information

Original Price $ 299,500
Status Closed
MLS# 26016915
Bedrooms 2
Full baths 2
Half baths 0
Main Floor Full Baths 2
Sq. Ft. Above 1,251
Lot Size
Acres 0
Subdivision Parkhurst Add
Municipality St Louis City
School District St. Louis City
County St Louis City
Property Type Residential
Style 1 Story
Style Description
Transaction Type
Special Conditions Standard
Type
Building Exterior Amenities
Building Style Bungalow
Ownership Private
Special Description Standard
Appliances Some Plumbed For Ice Maker,Microwave,Oven,Free-Standing Gas Oven,Gas Range,Water Heater

Additional Information

Elementary School Mason Elem.
Jr. High School Long Middle Community Ed. Center
Sr. High School Roosevelt High
Association Fee None
Architecture Bungalow
Construction Brick
Garage Spaces 1
Carport Spaces 0
Basement Description Bathroom,Full,Unfinished
Fireplace Type Decorative
Fireplace Location
Lot Dimensions 45/45x128/128
Special Areas
Cooling Ceiling Fan(s),Central Air
Sewer Public Sewer Sewer
Heating Baseboard,Forced Air,Natural Gas
Water Public
Heat Source
Kitchen
Appliances Plumbed For Ice Maker,Microwave,Oven,Free-Standing Gas Oven,Gas Range,Water Heater
Dining
Interior Decor Breakfast Room,Cedar Closet(s),Custom Cabinetry,Granite Counters,Open Floorplan,Pantry,Recessed Lighting,Shower,Storage
Property Tax $3,725

Map Location

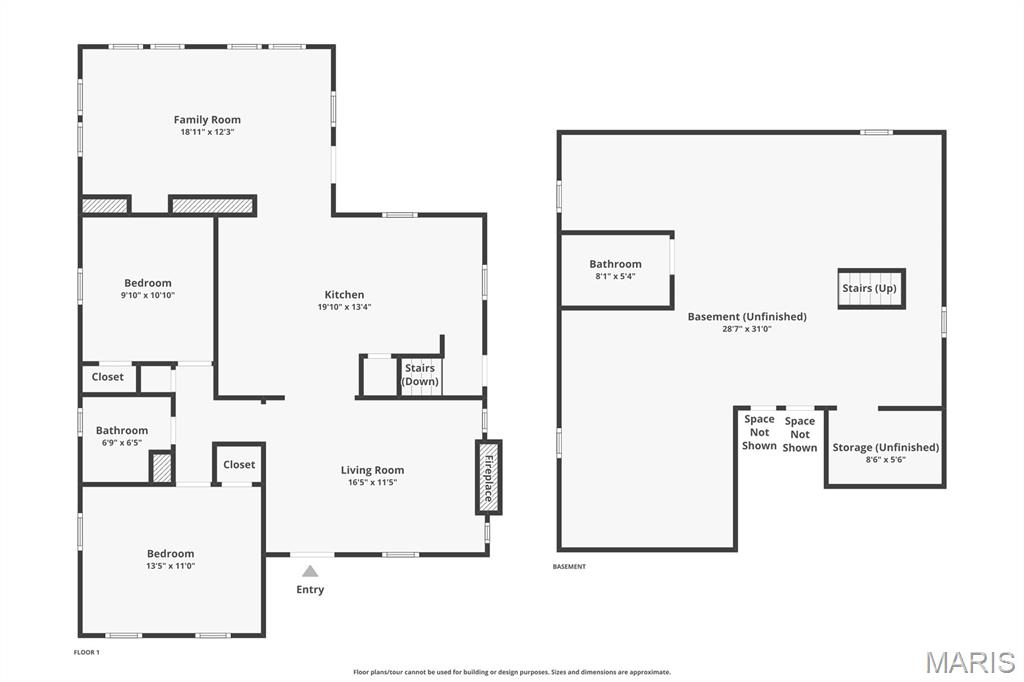
Rooms Dimensions

Room Dimensions (sq.rt)
Dining Room (Level-Main) 16 x 11
Kitchen (Level-Main) 11 x 8
Breakfast Room (Level-N/A) 13 x 8
Bedroom (Level-Main) 13 x 11
Bedroom 2 (Level-Main) 11 x 10
Family Room (Level-Main) 19 x 11

Change History

Listing Courtesy of 1 Degree Realty - [email protected]